Буровые установки ПО "УРАЛМАШ"
Они перевозятся крупными блоками - на тяжеловозах, мелкими блоками - на транспортных платформах и поагрегатно - на автотранспорте общего назначения; имеют большую мощность привода исполнительных механизмов, высокую степень механизации и автоматизации основных и вспомогательных операций процесса бурения; легки в управлении и удобны в обслуживании; обладают высоким качеством при эксплуатации в различных климатических районах. Установки, комплектуемые механизмами типа АСП, обеспечивают работу с трубами диаметром от 89 мм и более и замками всех типов отечественного производства и большинством бурильных труб по АР1, могут работать с утяжеленными бурильными трубами диаметром 178 мм. Комплекс АСП исключает трудоемкую физическую работу буровой бригады и сводит ее труд к дистанционному управлению механизмами, ликвидирует профессию верхового рабочего, повышает культуру и безопасность работы. Ниже (табл. 9) приведены технические характеристики буровых установок ПО "Уралмаш", их комплектующие механизмы и агрегаты (табл. 10), транспортирование блоков буровых установок тя-желовозами ТГП-70 и Т-60 (табл. 11), частота вращения стола ротора установок БУ3200/200ДГУ-1 и БУ5000/320ДГУ-1 (табл. 12), характеристика подъемной системы последней (табл. 13). Общие виды установок, характеристики подъемных систем, кинематические схемы приведены на рисунках. ПО "Уралмаш" изготавливает также основное буровое оборудование установки "Уралмаш ЗД-76", техническая характеристика которой приведена ниже. Оборудование установки размещается на основаниях блоков типа ОБ53 и ОБ53М и комплектуется в основном вышкой типа ВБ53.
|
Наименование
|
Значение
|
|
Общая установочная мощность привода лебедки, кВт
|
993
|
|
Максимальная грузоподъемность, т
|
200
|
|
Рекомендуемая глубина бурения (при массе 1 м бурильной колонны 30 кг), м
|
До 4000
|
|
Максимальная оснастка талевой системы
|
5х6
|
|
Максимальное натяжение ходовой ветви талевого каната, кН
|
273
|
|
Диаметр талевого каната, мм
|
32
|
|
Вид привода
|
Дизельный
|
|
Тип привода
|
Групповой
|
|
Число двигателей в приводе:
|
|
| лебедки |
3
|
| буровых насосов |
3+2
|
|
Лебедка (шифр)
|
У2-5-5
|
|
Мощность на барабане лебедки, кВт
|
809
|
|
Буровой насос (шифр)
|
У8-6МА2
|
|
Число насосов
|
2
|
|
Приводная мощность бурового насоса, кВт
|
585
|
|
Гидравлическая мощность насоса, кВт
|
500
|
|
Максимальная подача при давлении 10 МПа, л/с
|
51
|
|
Максимальное давление при подаче 19,7 л/с, МПа
|
25,0
|
|
Ротор (шифр)
|
Р-560
|
|
Диаметр проходного отверстия стола ротора, мм
|
560
|
|
Статическая грузоподъемность ротора, г
|
320
|
|
Мощность привода ротора, кВт
|
368
|
|
Вертлюг (шифр)
|
В-250
|
|
Статическая грузоподъемность вертлюга, т
|
250
|
|
Вышка (шифр)
|
ВБ53М
|
|
Кронблок (шифр)
|
УКБ-6-270
|
|
Грузоподъемность кронблока при максимальном давлении, т
|
270
|
|
Талевый блок (шифр)
|
УТБ-5-225
|
|
Грузоподъемность талевого блока, т
|
225
|
|
Дизель-генераторные станции:
|
|
| число |
2
|
| шифр |
ТМЗ-ДЭ-104СЗ
|
|
Мощность станции, кВт
|
100х2=200
|
|
Компрессоры
|
|
| с механическим приводом: | |
| число |
1
|
| шифр |
К-5М
|
| c индивидуальным электроприводом: | |
| число |
1
|
| шифр |
КСЭМ-5
|
|
Максимальное рабочее давление воздуха, МПа
|
0,8
|
|
Средства механизации:
|
|
| расстановка свечей |
-
|
| выполнение вспомогательных операций: | |
| удержание колонны |
ПКР-560
|
| свинчивание и развинчивание свечей |
АКБ-ЗМ2
|
| раскрепление замков |
Пневмораскрепитель
|
|
Грузоподъемное средство для обслуживания оборудования
|
Консольно-поворотный кран, ручной, грузоподъемность 3 т
|


Буровая установка БУ3200/200ЭУК-2М: а - общий вид; б - кинематическая схема



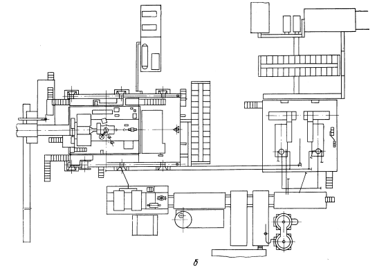
Буровая установка БУ3200/200ЭУ-1: а - общий вид; б - план; в - кинематическая схема



Буровая установка БУ8200/200ДГУ-1: а - общий вид; б - кинематическая схема; в - характеристика механизмов



Буровая установка БУ 50001320 ДГУ-1: а - общий вид; б - план; в - кинематическая схема















